新型太阳能热电发电机效率大幅提升 科技日报2025年8月26日报道,据美国《每日科学》网站25日报道,科学家借助黑色金属技术,研制出一款新型太阳能热电发电机(STEG),其转换效率较早期版本提高了15倍。该设备可用于为物联网无线传感器、可穿戴设备供电,或作为农村地区的离网可再生能源系统。相关研究成果已发表于最新一期《光:科学与应用》杂志。 STEG被科学界视为极具潜力的太阳能发电方式,不仅能利
摘要:【目的]针对电机轴承故障特征提取困难、诊断准确率低的难题,提出一种基于参数优化变分模态分解(VMD)和融合特征的智能诊断方法,以提升故障表征与识别精度。【方法】 ① 参数优化:引入麻雀搜索算法(SSA)自适应优化VMD的模态数K和惩罚因子 α ,解决人工选择难题(SSA-VMD)。 ② 特征提取:用SSA-VMD分解轴承振动信号,生成本征模态函数(IMF)集;依据局部包络熵最小化筛选最优IMF分量,计算其能量占比与能量熵,融合构建特征向量矩阵。 ③ 分类诊断:将特征矩阵输入支持向量机(SVM),并采用金豺优化算法(GJO)自适应优化SVM的惩罚因子与核函数参数,建立GJO-SVM诊断模型。【结果】实验表明,所提方法(SSA-VMD融合特征 Σ+ΣGJO-SVM )的故障诊断准确率达 98.75% ,显著优于粒子群算法优化SVM(PSO-SVM)和果蝇算法优化SVM(FOA-SVM)等对比方法。【结论】该方法通过SSA实现VMD参数自动优化,利用能量与熵值融合特征增强故障表征,结合GJO提升SVM分类性能,形成高精度诊断系统,为工业轴承状态监测提供了可靠的技术方案。
摘要:【目的】针对高职院校电气自动化专业教学需求,设计并实现一套基于物联网技术的电机监控系统,并将其作为实验教学平台使用。【方法】该系统的设计集成了多类型传感器(温度、电流、振动等),通过微控制器进行数据采集,利用无线传输技术将数据发送至云平台,并开发了可视化监控界面。【结果】结合高职教育特点,开发了系列教学案例与实验项目,包括传感器安装校准、数据采集系统搭建、故障诊断分析等实践内容,形成了综合性的实验教学平台。结论应用结果表明,该系统不仅有助于加强学生对物联网技术在工业场景应用中的理解,而且提高了学生对系统设计和故障分析能力,为电气自动化专业教学提供了有效的实践平台。
摘要:【目的】降压斩波器(BUCK电路)应用广泛,但其开环运行时输出电压存在稳态误差,难以满足实际应用需求,需进行仿真研究以改善性能。【方法】基于PWM闭环负反馈PID控制原理,利用SIMULINK建立仿真模型,在电路中引入闭环负反馈控制策略,对输出电压进行闭环调节,可以消除稳态误差,但其动态响应不够快速。于是,考虑采用开、闭环相结合的复合控制,希望既可以消除稳态误差,又可以加快动态响应。结果通过仿真模型的设计、验证参数的整定,结果表明:采用开、闭环相结合的复合控制,可以有效消除BUCK电路的输出电压的稳态误差,满足系统快速的动态响应要求。【结论通过利用SIMULINK仿真进行快速调整参数和重复的实验,以极低的成本和风险模拟了复杂的真实场景,极大提高了工程实验的灵活性和效率。
摘要:【目的】为提升 500kV 变电站的运行效率与安全性,提出一种 500kV 变电站综合自动化远方控制技术。方法】首先,采用系统分析和工程验证,针对通信协议、一键顺控及电容电抗器组控制等关键技术进行研究;其次,通过构建半实物仿真平台对系统功能和性能进行测试,并在实际工程中进行应用验证,全面评估其技术可行性和运行稳定性。【结果】该技术显著提升了变电站的自动化水平,操作响应时间缩短至 1.5s ,设备利用率达 94.7% ,电压合格率 98.9% ,操作成功率99.8% ,运维成本降低 35% 。【结论】通过优化网络架构、完善安全防护体系和强化系统集成等措施,有效提高了变电站远方控制的可靠性和安全性,为变电站智能化运行提供了可靠的支撑。
摘要:【目的】在乡村全面振兴与智慧农业加速推进的背景下,传统农业生产对机械化、智能化装备的需求日益迫切。本研究旨在对一种运用于农业生产的农业机器车的机械系统进行设计。方法针对农业机器车的机械部分进行设计计算与校核工作,具体包括前桥、后桥、车厢、车架的设计,材料的选用及驱动电机的选型。前桥工作涉及传动机构的设计和舵机的选型;后桥工作包含结构设计、驱动电机选型及配套减速器的验算;车厢工作涵盖外形设计与材料选择;车厢门工作主要是确定开关门方式和设计机械结构;此外还包括机器人电池的选择。【结果】设计出可以应用于农业生产中的农业机器车的机械系统,推动农业生产从半自动化向自动化进一步转变。结论】本次设计紧扣“双碳”目标与农业机械化转型升级,构建了涵盖结构设计、动力匹配、材料选型的完整机械系统解决方案。
摘要:【目的】解决纺织机械不锈钢墙板焊接工艺适配性差、效率低及质量稳定性不足等问题,推动行业智能制造升级。【方法】构建“首件调试—工艺迭代—全速生产"技术体系,集成动态参数调优算法优化焊接电流/电压的实时匹配,运用路径规划算法实现多机械臂协同作业,并开发自适应送丝系统提升熔敷效率。结果单件焊接时间缩短 68% ,表明机械手焊接不锈钢墙板性能更优,且比手工焊接墙板外观更加规整,工艺可重复性更高。【结论】实现了机械手焊接系统的优化升级,为纺织机械行业智能制造转型提供了可复制的解决方案。
摘要:【目的】煤矿井下通风系统是保障矿井安全高效开采的关键支撑体系,探究其运行可靠性对提升井下作业安全水平具有重要科学意义。【方法】以中煤新集二矿通风系统为分析对象,运用理论分析和现场考察方法,建立通风系统可靠性分级评估指标,探究主要通风机及通风网络设施相关稳定参数设定,采用可拓学物元分析方法建立煤矿通风系统可靠性评价模型,通过熵权法计算指标权重系数,进而实现通风系统安全等级的定量化判定。结果】建立可靠性评价3项一级指标和16项二级指标,并得出矿井通风系统的可靠性为Ⅲ级,即为可靠的结论。结论该研究成果为改进矿井通风系统提供了科学依据。
摘要:[目的]旨在探讨挡水建筑物设计中,坝型比选以及坝体设计问题,以期提高水利工程的安全性与经济性。方法】本研究通过经济分析、技术可行性分析及环境影响评估,对不同坝型进行综合比选,确保所选坝型在成本、施工技术及生态影响上达到最佳平衡。在坝体设计方面,重点分析材料选择及其特性、坝体几何形状、水流量以及地质条件对坝体的影响。【结果】研究结果表明,合理的坝型选择与科学的坝体设计不仅能提高工程的安全性,还能降低建设与维护成本。【结论】研究成果可为水利工程的设计提供指导,推动水利工程的绿色、可持续发展。
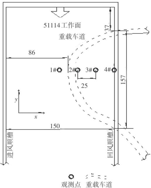
摘要:【目的】为了解决浅层开采造成地表重载公路的塌陷问题,有必要对采后工作面上覆岩的变形规律进行研究。【方法】以金通煤矿重载车道下51114综采工作面开采为例,通过对地表塌陷的监测和地表变形特征分析,系统研究了浅埋工作面开采后上覆岩变形规律,以及对塌陷区重载车道的影响。【结果】研究结果表明,51114工作面开采后上覆岩存在“快而大"的垮落特征,且同时存在“拉伸一压缩”相互交替和叠加的复杂应力影响。结论】此种复杂应力及变形特征造成了上部重载车道发生断裂、挤压或塌陷,并在路面产生台阶、斜坡、扭曲或空洞,严重影响了运输安全。基于此,对重载车道采取了“先软铺,后硬化”的修复措施,最终成功完成公路下采煤,并确保了重载车道的安全运行。此研究为浅埋煤层开采地面塌陷修复和治理技术提供实践经验。
摘要:【目的】为探究龟山断裂中断层的分布情况,用综合物探法对此区域开展物探工作。【方法】本文运用瞬变电磁法,对龟山断裂进行实地试验,分析断裂空间的展布特征及关联情况。【结果】在对瞬变电磁法的3条物探断面图解译后,确定勘查区分布了4条断层,并计算出断层的深度、裂缝宽度与层厚。【结论】说明在地形复杂的山区,采用瞬变电磁法探测断裂是一种较为有效的手段,为该地区的勘查及开发提供了依据。
摘要:【目的】为确保地下碉室在施工期和运营期的稳定性,对大跨度碉室支护方案进行验证和改进。方法结合地下碉室变形监测项目的布设,通过对监测成果进行分析,研究大跨度地下酮室变形随时间、施工进度、空间等变化规律。同时根据不同监测部位不同测点的变形规律,采用双曲函数和对数函数,建立基于时间序列的安全监控模型,并将其用以判断围岩的安全状况。结果结果表明: ① 桐室围岩变形主要受开挖与岩体流变影响; ② 桐室围岩变形由表及里变形量逐渐减小;③ 施工引起变形的最大影响深度在 12m 以内,主要变形量发生在 0~8m 的区域内。结论研究成果可为大跨度地下碉室变形监测设计及应用提供参考和借鉴。
摘要:[目的)研究以工业废渣取代水泥作为自密实混凝土胶凝材料时的工作性能(坍落扩展度、凝结时间)、力学性能(抗压强度)及耐久性,为工业废渣在自密实混凝土中的应用提供合理依据。【方法通过控制变量法,系统分析矿渣取代量、粉煤灰取代量、碱激发剂掺量、水灰比等关键参数的变化,对材料的坍落扩展度、凝结时间、抗压强度等性能指标的影响,同时开展耐久性分析。结果]随着矿渣取代量、粉煤灰取代量、碱激发剂掺量、水灰比的增加,材料坍落扩展度增大(流动性能增强),初凝和终凝时间均延长。矿渣取代量、粉煤灰取代量、水灰比增大时,材料抗压强度降低;碱激发剂掺量对强度的影响呈先增后减趋势。矿渣和粉煤灰均能显著改善材料的耐久性,延长其使用寿命,且粉煤灰的改善效果优于矿渣。结论工业废渣可作为自密实混凝土的胶凝材料,在确保抗压强度满足要求的前提下,可适当提高工业废渣取代量,其既能提升材料综合性能,又能实现废料资源化利用。
摘要:[目的】静压双桩是桩基础最常见的施工方法,但是对其沉桩机理研究相对匮乏,有必要对其沉桩特性进行研究。【方法】利用大型模型试验方法,分析砂土中静压双桩的不同桩间距、沉桩方式和承台类型对静压桩双桩沉桩特性的影响【结果】试验结果表明,静压双桩系统的压桩力随沉桩深度增加呈非线性增大,随着沉桩数量增加而增大,并随着沉桩间距增大而先增大后降低;沉桩端阻力在沉桩深度为 25D 时基本达到极值,且沉桩终端阻力占沉桩终压力的比例高达 72% 然而压桩力、桩端阻力与承台类型无关。【结论】研究成果揭示了静压双桩沉桩特性演化规律,为静压桩基础设计和施工提供参考。
摘要:【目的】查明山西某项目S桥 0*~8* 桥桩基附近是否存在采空区、裂缝、溶洞等不良地质体分布,评判地下不良地质体对桩基工程安全的影响。【方法】采用地震散射技术(SSP)对研究区开展工程物探工作,介绍其方法原理及应用效果,对桥桩基场地下的断裂带及岩溶发育区进行圈定解释。【结果】研究结论表明,采用地震散射技术基本查清了桥址场地内主要不利的工程地质问题,包括低速松散岩土的分布与成因,断裂带的分布,岩溶的发育及其对工程场地稳定性的影响。结论研究成果为后期勘查工作提供一定的技术依据。
摘要:【目的】研究DP980钢在高温下的蠕变行为,在高温条件下为DP980钢构件的安全性评估与寿命预测提供了依据。方法】开展在823、923K条件下的高温蠕变试验,拟合得到Sinh损伤模型与Norton耦合损伤蠕变模型。【结果】分析该材料蠕变损伤规律与寿命预测精度,Sinh损伤模型能够完整地描述损伤变量从0到1的演化过程。【结论】蠕变寿命预测误差比Norton耦合损伤蠕变模型小,更适合用于DP980钢的蠕变损伤分析。
摘要:[目的】针对高掺量RAP沥青混合料抗裂性能不足、施工和易性差等问题,研究石油基、生物基及复合型再生剂对其路用性能的影响机制。【方法】通过文献调研梳理三类再生剂组成特征;基于马歇尔稳定度、动态模量、MSCR等试验分析再生剂对混合料性能的影响规律。结果】石油基再生剂软化能力强,主要通过物理软化降低沥青黏度;生物基再生剂富含极性官能团,可化学改性老化沥青;复合再生剂通过协同效应综合改善性能。适量掺配可使高RAP混合料关键指标接近常规混合料。【结论】再生剂类型与掺量是性能恢复的关键因素。复合再生剂综合优势显著,未来需在长期老化机理、标准规范、新型再生剂开发等方面深入研究。
摘要:[目的]揭示2016年11月22日河南省暴雪过程天气成因,提升应对灾害天气的服务能力和水平。【方法】使用常规气象观测资料、NCEP及ERA5再分析资料,对暴雪过程中水汽、动力和热力条件等物理量进行诊断分析,并对比相态转变条件空间差异。结果】结果表明:高空低槽和中低层切线、急流为主要影响系统。 500hPa 冷涡中心东移南压,南支槽缓慢东移, 700hPa 切变线南部风速为 12m/s 的西南急流提供大量水汽, 850hPa 以下有深厚的冷垫,是河南省典型降雪天气形势;暴雪中心上空水汽辐合区深厚,分布在 700~550hPa ,水汽通量辐合大值中 ,并且与整层可降水量 16mm 区域有较好对应,提供了充沛的水汽条件;中低层辐合,高层辐散产生的强烈上升运动为动力机制,上升运动中心最大达 -0.8Pa/s 。低层冷平流,高层暖平流。自北向南层结结构的不同导致降水相态空间和雨转雪时间差异。结论】研究结果可为河南省强降雪预报提供参考。
摘要:【目的】揭示2022年8月18日青海省大通县一次暴雨过程的中尺度系统特征,提高青海东部暴雨天气过程短时预报预警能力。【方法采用天气学分析方法,利用地面、高空、卫星、雷达等观测资料、ERA5再分析资料等对此次强对流暴雨过程进行诊断分析。结果】结果表明: ① 此次暴雨的中尺度特征和极端性显著。 200hPa 南亚高压 ,500hPa 副高和短波槽,以及 600hPa 低涡是此次过程的大尺度影响系统,地面辐合线为触发机制, 200hPa 高空急流入口区的辐散区与中低层正涡度区对应,强降水出现在高空急流右侧。 ② 强降水发生于上暖下冷的热力不稳定、中等强度对流不稳定、弱垂直风切变、较低的抬升凝结高度和暖云层深厚的中尺度条件下,强降水发生前后大通南北侧均有显著上升运动,强上升运动出现在降水前 4h 。 ③ 此次大通暴雨的水汽来自中低层西南气流、东南气流和东北气流的输送,低层的水汽辐合在18时至20时最强,气柱总水汽含量在 20~30kg?m2 ,说明水汽条件充沛。 ④ 此次强降水由MCC所致,最强对流云团TBB达到 -90~80°C ,强降水落区在MCC南侧TBB等值线密集区附近;从雷达回波来看,强降水由多单体强风暴所致,径向速度场表现为风暴前沿的显著辐合。【结论】研究结果揭示了青海东部暴雨天气过程的中尺度系统发展演变机理,为此类天气过程的预报分析提供了可实际应用的指标和参考。
摘要:【目的】探讨无人机倾斜摄影测量技术在农房调查中的应用,为农村不动产管理和确权登记等提供技术路径。【方法】以广西兴安县农房调查项目为例,从外业数据收集、像控点布设、实景三维建模、数字线划图生产到数据成果质量检查等方面,系统闸述无人机倾斜摄影测量技术的应用步骤。【结果】结果表明,平面精度点位中误差为 ±2.3cm ,边长中误差为 ±3.15cm ,满足农房调查的精度要求。【结论无人机倾斜摄影测量技术通过多角度获取高分辨率影像,生成高精度的三维地理信息模型,显著提高了数据采集的效率和精度。
摘要:【目的】通过技术集成解决国土空间规划中的技术难题,为三维时空数据更好地服务国土空间规划应用、实现治理体系现代化提供新思路。【方法】首先,采用归纳法对国土空间规划中存在的空间分析类问题和重难点进行梳理归纳。其次,以鹤壁市淇滨区国土空间规划为例,从生态保护、景观视域、数字城市和城市安全等4个维度,分析GIS的关键技术在国土空间规划中联合的而非单一的应用,形成二三维GIS分析工具包。【结果】基于二维规划编制成果,进行三维空间立体可视化技术表达,使自然资源信息更加形象立体,三维场景显示更为清晰直观。[结论】通过二三维GIS分析工具包,构建GIS技术集成模型,对提升国土空间规划治理体系和治理能力现代化水平具有重要意义。
摘要:[目的】直罗组是侏罗系油藏的重要潜在富油层段。为圈定鄂尔多斯盆地五蛟西地区直罗组砂岩油藏成藏有利区,亟须厘定其沉积相特征及砂体特征,为研究区规划直罗组油藏勘探部署提供参考。【方法】基于测井地质学与沉积岩石学,利用测录井资料、试油试产资料等,分析五蛟西地区直罗组砂岩油储集砂层的沉积相与砂体特征,并探讨其对油藏的控制作用。【结果】研究结果表明:五蛟西地区直罗组接受NW向物源,中上部位的直1段与直2段主要发育曲流河沉积,在下部的直3段与直4段的发育辫状河沉积。直罗组从直4-直1期砂体逐渐变细、规模变小。【结论】五蛟西地区直罗组砂岩油为沉积、构造与砂体耦合控制,沉积主砂带匹配微构造高点是直罗组砂岩油藏的有利成藏区。
摘要:【目的]在现行著作权法律体系下,明确对非物质文化遗产数字化成果的权利保护,以推动非物质文化遗产的数字化进程,实现非物质文化遗产的生产性保护。方法先从非物质文化遗产数字化成果的概念入手,分析其作品属性和权利归属;再根据权益衡平原则,针对各主体之间的矛盾提出解决方案。结果非物质文化遗产数字化成果可以根据作品属性分为作品型和非作品型两类,作品型可利用著作权加以保护,非作品型应纳入邻接权的保护范围。【结论】非物质文化遗产数字化成果的权利保护需在权利主体间建立“充分告知 + 实质性同意”的互动规则及利益分享机制,并通过补充合理使用规则、增补特殊许可及共享许可等法定许可情形构建权利衡平机制。
摘要:【目的研究河南省科技成果转化中的知识产权保护问题,探索适配中部地区产业特征的系统性解决方案。【方法】采用问题导向研究路径,解析河南省特色产业创新实践痛点,设计四维协同策略,构建产业导向型地方政策法规体系,推行知识产权管理标准化体系及产学研合作“知识产权先行协议”,实施根植县域经济的知识产权文化培育工程。【结果】河南省科技成果转化面临法律法规适用存在盲区,企业知识产权管理薄弱,侵权与维权成本倒挂及专业服务人才短缺等问题,制约了其对科技创新成果的有效保护。【结论】为解决这些问题,建议构建产业适配型法规,提升企业知识产权管理能力,完善维权机制,加强文化教育,推动建设地方知识产权保护体系。
摘要:【目的]通过对河南科技大学近20年的专利信息进行系统统计和分析,揭示该校在专利申请、技术构成、发明人分布、法律状态及转化等方面的现状和趋势,为提升专利授权率、有效性和转化效率提供依据。【方法】运用incoPat专利检索分析系统,结合信息计量学方法,使用指令检索方式进行数据统计和数据分析,剖析河南科技大学专利发展特点及问题,并提出改进策略。【结果】通过对基础信息的提取和数据的系统梳理,发现河南科技大学在专利申请和管理方面取得了一定成效,表现为专利申请总量大、技术领域集中、发明人集中及专利有效率高等,但仍存在专利法律状态不佳、专利产出来源集中和专利转化效率不高等问题。【结论从提高专利授权率和有效性,推动多源创新,精准匹配资源,加强校企合作等方面进行改善。
摘要:【目的随着科技、文化和旅游业的深度融合,科技馆的智慧建设开始得到场馆管理方的关注和重视。本研究针对当前智慧科技馆建设中存在的顶层设计缺失、建设资金短缺、特色亮点不足等突出问题,尝试探索科技馆智慧化建设的实施路径,提出一些普适性建议。【方法】以河南省科技馆智慧场馆建设项目为研究对象,通过全过程跟踪调研,运用系统分析法对智慧场馆的架构设计、技术集成与功能实现进行实证研究。【结果】提炼出智慧科技馆建设的“四层架构”模型,总结出物联泛在化、信息可视化、服务平台化等共性特征,并揭示出设备数据融合和技术应用适配等项目实施难点。结论]提出建立需求导向的顶层设计机制、实施动态选代的分段建设策略、构建内容驱动的特色服务体系等建议,为同类型场馆智慧化转型提供借鉴和经验。
摘要:【目的科技创新立法是依法治国背景下创新驱动发展战略的关键制度支撑,通过总结分析国内不同地区科技立法的实践经验,为推动地方科技立法提供参考【方法】采用对比分析、综合分析等方法,总结并分析我国地方科技创新立法的具体实践。结果】分析了深圳市、上海市、合肥市和四川省立足地方省(市)情,各具特色的区域立法实践探索。【结论】地方科技创新立法需立足“制度设计者”与“创新保护者”双重角色,提出在法制统一的框架下构建符合地方需求的科技法律体系;强化以鼓励科技创新为核心导向的法律保护体系建设;建立包容审慎的监管制度等建议,以期加快科技创新相关法律制度建设,为区域科技创新提供法律保障。
摘要:【目的】分析适合河南省科研院所高质量发展的科研经费绩效评价路径,为提升河南省科研经费支持效率提供价值参考。【方法】聚焦并剖析河南省科研经费激励机制运行过程中出现的问题及原因,探索科学合理的绩效评价机制建设。结果】当前河南省绩效评价机制中存在部分科研院所绩效管理制度不健全;科研经费绩效考核短期导向明显;经费使用评价标准重“量化指标"轻“实践价值”;绩效评价缺乏第三方参与等问题。【结论】提出了完善各科研院所的科研经费绩效管理机制;适当延长绩效评价机制周期;根据科研实践情况健全经费使用评价标准;引入第三方评价机制等建议。
摘要:【目的]在创新驱动发展战略背景下,本研究剖析河南省第三方科技成果评价的发展现状、核心问题与成因,提出完善对策,以期为河南省健全市场化评价体系、打造全国创新高地提供理论支撑与实践参考【方法】本研究基于河南省政策实践与试点经验,通过“现状梳理—问题诊断—对策设计"的逻辑框架展开研究。结果】河南省虽初步构建政策环境、形成试点网络并探索科技成果第三方评价标准,但仍面临专项实施细则缺乏与政策实施协同性不足;专业化能力存在短板与区域服务能力不平衡;科技成果第三方评价中存在需求侧功利化导向与供给侧服务缺陷;省级统筹缺位与第三方评价体系市场分割等深层矛盾。结论】针对上述问题提出系统性治理路径:强化制度保障与政策协同,提供规范化制度支撑;提升评价机构专业化能力,构建良性服务生态;重构供需两端协同机制,打通科技成果转化链条梗阻;深化第三方评价机制的区域协同与数据共享,破解区域发展不平衡的矛盾。
摘要:【自的】探索新质生产力驱动下南阳市光电产业由传统制造业向创新智造业转型的路径,为我国中西部地区光电产业高质量发展提供理论框架与实践参考。【方法】基于产业链拆解与竞争力评估模型,以及对南阳市当地和外地光电企业的调研,系统分析南阳光电产业现状,提出其高质量发展的有效路径。【结果】南阳光电产业呈现发展基础好、市场占有率高、技术创新点状突破、政府扶持力度大等特点,但同时也存在产业链低端锁定效应显著;规上企业少,龙头企业的带动作用不明显;产业创新政策精准度和协同性不足等核心问题。【结论]提出优化产业结构,布局未来赛道;加快技术突围,推动科研成果落地;分类培育专精特新中小企业,升级产业集群;强化光电产业创新要素保障,完善扶持政策等建议。